Overview
Status:  Selling
Category:  Apartment
Number of blocks:  2
Number of floors:  10
BHK:  3
Description

๐ŸŒŸ RV Heights โ€“ 3 BHK Premium Living ๐ŸŒŸ

Luxury Comfort | Modern Lifestyle | Sabarmati, Ahmedabad ๐Ÿกโœจ

๐Ÿข Project Preview

Welcome to RV Heights, an exclusive residential development offering 3 BHK premium apartments in Sabarmati, Ahmedabad. These homes are designed with spacious layouts, balconies, vitrified flooring, granite kitchens, premium sanitary fittings, biometric door locks, and decorative finishes, making them ideal for families seeking grand living with modern elegance.

The project blends sophistication, safety, and lifestyle amenities. Strategically located near Abu Street, Ramnagar, and Sabarmati BRTS/Metro corridor, RV Heights offers a perfect balance of convenience and luxury. With terrace gardens, yoga spaces, gazebos, open seating, gymnasium, indoor games, CCTV surveillance, fire safety systems, and basement parking, it ensures a lifestyle that is both secure and stylish. ๐ŸŒฟ๐Ÿ’ซ

๐Ÿ“Š Project Details โ€“ 3 BHK Residences

๐Ÿข Number of Blocks: 2 Towers

๐Ÿฌ Number of Floors: 10 Floors each

๐Ÿก Number of Flats: Approx. 80 premium 3 BHK apartments

๐Ÿ› ๏ธ Specifications โ€“ RV Heights Residences ๐Ÿกโœจ

๐Ÿ—๏ธ Structure

โœ… Earthquake-resistant RCC framework with brick masonry walls

๐ŸŽจ Walls

๐Ÿ  Internal: Putty finish over mala plaster

๐ŸŽจ External: Double coat plaster with premium colour finish

๐Ÿณ Kitchen

๐Ÿ–ค Granite finished platform with S.S. sink

๐ŸŸฆ Designer tile dado up to lintel level

๐Ÿšฟ Plumbing

๐Ÿ’ง Concealed plumbing with high-standard pipe fittings

๐Ÿšฟ Premium CP fittings for durability and elegance

๐Ÿ” Biometric Door Lock

๐Ÿ‘† Fingerprint scanner for secure access

๐Ÿ“ฑ Remote access via smartphone app for convenience

โšก Electrification

๐Ÿ”Œ Three-phase concealed copper flexible wiring

๐Ÿ’ก Adequate points with branded modular switches in all rooms

๐ŸŽฅ CCTV Camera

๐Ÿ›ก๏ธ CCTV surveillance at basement, ground floor & all floors

Contact & Sales ๐Ÿ“ž:-

Site Office:ย  Behind Jayhind Petrol Pump, Opp. Abu Street, Ramnagar, Sabarmati, Ahmedabad.

๐Ÿข Sales Enquiries: 9979215215 ย ย 

๐Ÿ“ฒ Email: realas8.bvinf@gmail.com ย ย 

ย โœ‰๏ธ Website: https://www.realas8.com/ ย 

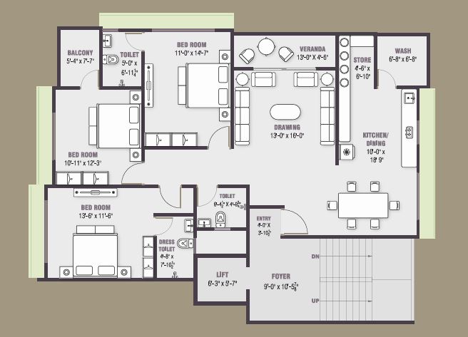
Floor Plane
Floor Plan

Features

Parking Parking

Garden Garden

Security Security

CCTV Surveillance CCTV Surveillance

Yoga Area





Share this project:

Write a review

Please log in to write review!




Contact