3BHK Luxury Apartments with Modern Amenities at Jahangirpura Surat | Anand Aspire

Anand Aspire

(0)

Aug 18, 2025

Contact Selling

Overview
Category   :
Apartment
Square   :
Number of floors   :
Number of bedrooms   :
  3
Number of bathrooms   :
  3
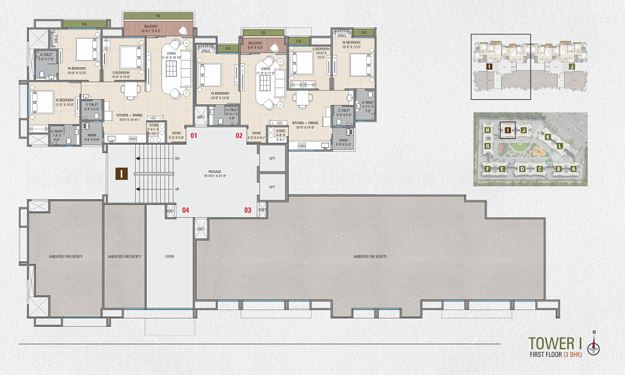
Floor Plane
Floor Plan Floor Plan
Description

🏡 Anand Aspire 3BHK Apartments – Spacious & Luxurious Living

Overview

For larger families and those seeking extra comfort, 3BHK apartments at Anand Aspire provide generous living spaces with premium finishes. Designed for elegance and convenience, these homes deliver a lifestyle where every detail enhances comfort and luxury.

Why Choose 3BHK at Anand Aspire

🏛 Spacious layouts for big families

✨ Modern design with premium fittings

🎉 Access to banquet hall, clubhouse & reading lounge

📍 Prime location beside D-Mart, Jahangirpura

📈 High appreciation & rental potential

Key Amenities for 3BHK

🛋 Large family living & dining zones

🛏 Spacious bedrooms with balconies

🏋️ Gym & fitness center

🎯 Indoor games & multipurpose hall

🔥 Fire safety systems & rainwater harvesting


📍 Location Advantage

🚉 Metro station – 900 mts

🚌 City bus stop – Walking distance

🏫 Schools & colleges – Nearby

🏥 Hospitals – Within minutes

🛒 D-Mart shopping at doorstep

⛽ Petrol & CNG pumps – Close proximity


📞 Contact Us

📲 Mobile: +91 9979215215
🌐 Website: www.realas8.com





Share this property:

Write a review

Please log in to write review!




Contact


Related properties